Inici Comunicació Notícies La junta de Govern aprova el projecte de renovació de la xarxa de serveis del Grau
El projecte "Renovació de Serveis Mínims al Barri del Grau" suposa una inversió d’un milió d’euros i preveu la renovació de la xarxa de clavegueram, d’aigua potable i de pluvials
publicat el 09/11/2022
La junta de Govern local de dilluns 7 de novembre ha aprovat inicialment el projecte "Renovació de Serveis Mínims al Barri del Grau" amb un pressupost de gairebé 1 milió d’euros
El projecte, que està en exposició pública, preveu la substitució i retirada de la xarxa de clavegueram existent i de totes les escomeses, instal·lació de nova xarxa separativa d’aigües pluvials i connexió de les baixants de les cobertes dels immobles, substitució i retirada de la xarxa d’aigua potable existent.
Pel que fa a pavimentació, els carrers afectats es reurbanitzen amb configuració de plataforma única prioritzant la circulació de vianants davant la circulació de vehicles i eliminant barreres arquitectòniques, així com una nova senyalització a tot l’àmbit
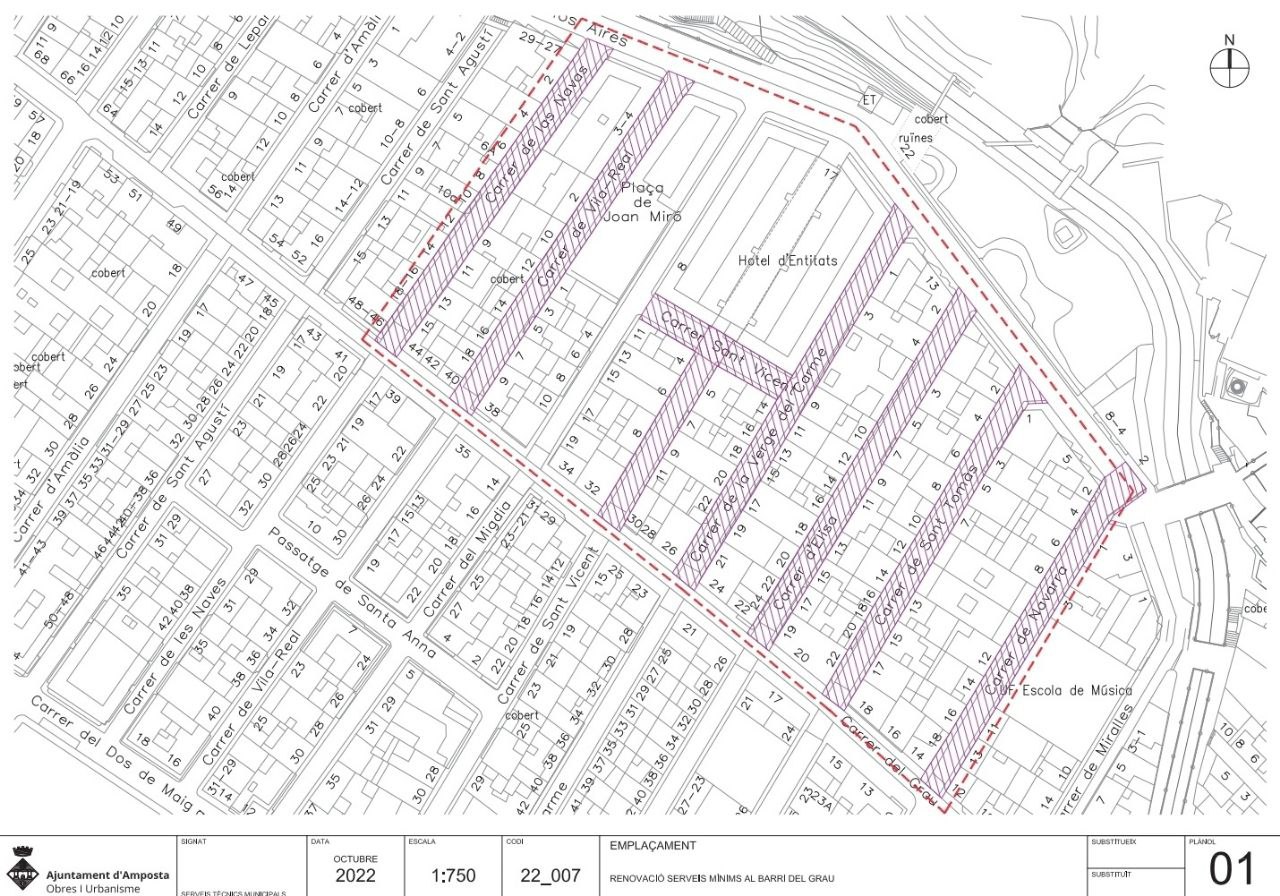
Es tracta d’una primera fase del que ha d’acabar sent la modernització del Barri del Grau, actuant als carrers Navarra, Sant Tomàs, Elisa, Verge del Carme, Sant Vicent, Vila-Real i Las Navas entre el carrer Grau i Buenos Aires.
El pressupost final del projecte és de 978.697,11 €, dels quals 154.355,89 € arriben des del PAM (Pla d’Acció Municipal) de la Diputació de Tarragona, 136.079,45 € del programa PUOSC (Pla Únic d’Obres i Serveis) de la Generalitat de Catalunya, i els 688.261,77 € restants en recursos propis per als que s’ha sol·licitat Fons Next Generation de l’Agenda2030 per valor de 400.000 €, pendents de resolució.
Les obres han d’estar executades abans del juny del 2024 d’acord amb els terminis de les subvencions atorgades.
.jpeg)


Ajuntament d´Amposta · Pl. de l´Ajuntament, 3-4 · 43870 Amposta | Tel. 977 70 00 57 | ajuntament@amposta.cat
Contacte | Avís legal | Política de privacitat | Accessibilitat | Política de cookies |
RSS de l’Ajuntament
Edifici Lo Sindicat (Ajuntament d´Amposta) · Av. de la Ràpita, 43 · 43870 Amposta | Tel. 977 70 40 27
Contacte | Avís legal | Política de privacitat | Accessibilitat | Política de cookies

Fab Lab TE (Ajuntament d´Amposta) · Av. de la Ràpita, 43 (edifici Lo Sindicat) · 43870 Amposta | Tel. 977 70 94 50 | fablabte@amposta.cat
Contacte | Avís legal | Política de privacitat | Accessibilitat | Política de cookies

Biblioteca Comarcal Sebastià Juan Arbó (Ajuntament d´Amposta)
Adreça provisional: Av. de Sant Jaume 42-52 (Oficina de Turisme - Espai Km 0) · 43870 Amposta | Tel. 977 70 48 21 | bcsja@amposta.cat
Contacte | Avís legal | Política de privacitat | Accessibilitat | Política de cookies